
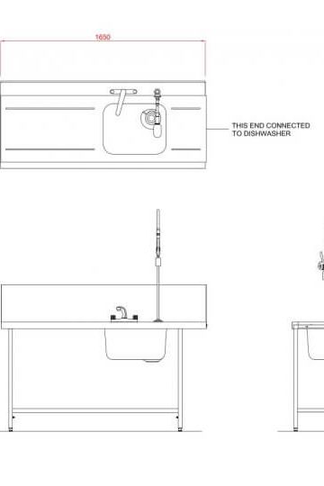
The Hobart SD1650L/R Inlet Triple Rack Table & Sink has welded, high-grade stainless steel tabling that includes a sink bowl with a separate splashback.
- For left to right operation, based on facing the unit
- Square tubular leg frame and swaged top
W1650 x D706 x H1183